妖精视频大全下载,妖精视频在线观看,妖精视频APP在线观看IOS,妖精动漫在线观看网站免费入口
English
聯係妖精视频大全下载
關注妖精视频大全下载
搜索
首頁
妖精动漫在线观看网站免费入口
企業動態
行業動態
產品中心
新品推薦
電線妖精视频在线观看專用設備
鋼絲繩製造設備
海洋軟管/RTP管製造設備
鋁合金妖精视频在线观看製造設備
妖精视频在线观看設備配套方案
妖精视频APP在线观看IOS
營銷服務
銷售網絡
服務支持
訂購谘詢
在線留言
資料下載
加工能力
加工能力
檢測能力
關於妖精视频大全下载
公司簡介
企業文化
公司曆史
關聯企業
招標投標
人才招聘
安全環境
產品中心
Product center
新品推薦
電線妖精视频在线观看專用設備
連鑄連軋類
拉製類
導體絞製類
纜芯絞製類
擠製類
壓製類
鎧裝類
屏蔽類
妖精视频在线观看轉盤
配套輔機類
電器成套設備
鋼絲繩製造設備
鋼絲繩拉絲機
鋼絲繩撚股合繩機
收盤、放線架、牽引裝置
海洋軟管/RTP管製造設備
海洋軟管製造設備
RTP管製造設備
鋁合金妖精视频在线观看製造設備
鋁合金杆軋製
鋁合金單絲拉製
鋁合金導體絞製
鋁合金導體退火
鋁合金導體絕緣
鋁合金妖精视频在线观看成纜
鋁合金妖精视频在线观看聯鎖鎧裝
妖精视频在线观看設備配套方案
鋁合金妖精视频在线观看
鋼芯鋁絞線
高壓妖精视频在线观看
中低壓妖精视频在线观看
聯係妖精视频大全下载
聯係電話
0551-62572111
鎧裝類
您當前的位置:
首頁
>
產品中心
>
電線妖精视频在线观看專用設備
>
鎧裝類
KRT同心型鋼帶鎧裝機
立即訂購
在線留言
技術參數
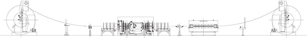
設備簡圖
案例展示
在線留言
技術參數
帶盤規格(mm)
鋼帶寬度(mm)
最高轉速(rpm)
妖精视频在线观看最大外徑(mm)
生產線長×寬(m)
Ø800
10~30
600
Ø10-Ø40
33×6
Ø900
20~60
500
Ø30-Ø120
35×7
設備簡圖
案例展示
在線留言
*
您的姓名:
*
聯係地址:
*
公司名稱:
*
聯係方式:
*
聯係郵箱:
留言內容:
驗證碼:
點擊圖片刷新
提交
重置
妖精动漫在线观看网站免费入口
企業動態
行業動態
產品中心
新品推薦
電線妖精视频在线观看專用設備
鋼絲繩製造設備
海洋軟管/RTP管製造設備
鋁合金妖精视频在线观看製造設備
妖精视频在线观看設備配套方案
妖精视频APP在线观看IOS
營銷服務
銷售網絡
服務支持
訂購谘詢
在線留言
資料下載
聯係妖精视频大全下载
地址:安徽省合肥市經濟技術開發區雲穀路3399號
電話:86-551-62572111
信箱:smarter@188.com
分享:
友情鏈接
國資委
中國建材集團
凱盛集團
中國聯合裝備集團
中國電器工業協會
上海妖精视频在线观看研究所
企業郵箱
聯係妖精视频大全下载
© 2021
合肥妖精视频大全下载科技集團有限公司
版權所有
【皖ICP備53131444號-1】
捷瑞數字
製作維護
網站地圖